La committenza, per la quale avevamo già curato la ristrutturazione dell’abitazione nel 2021, ci ha successivamente incaricati di realizzare una sopraelevazione dell’edificio esistente, composto da un piano seminterrato e un piano fuori terra.
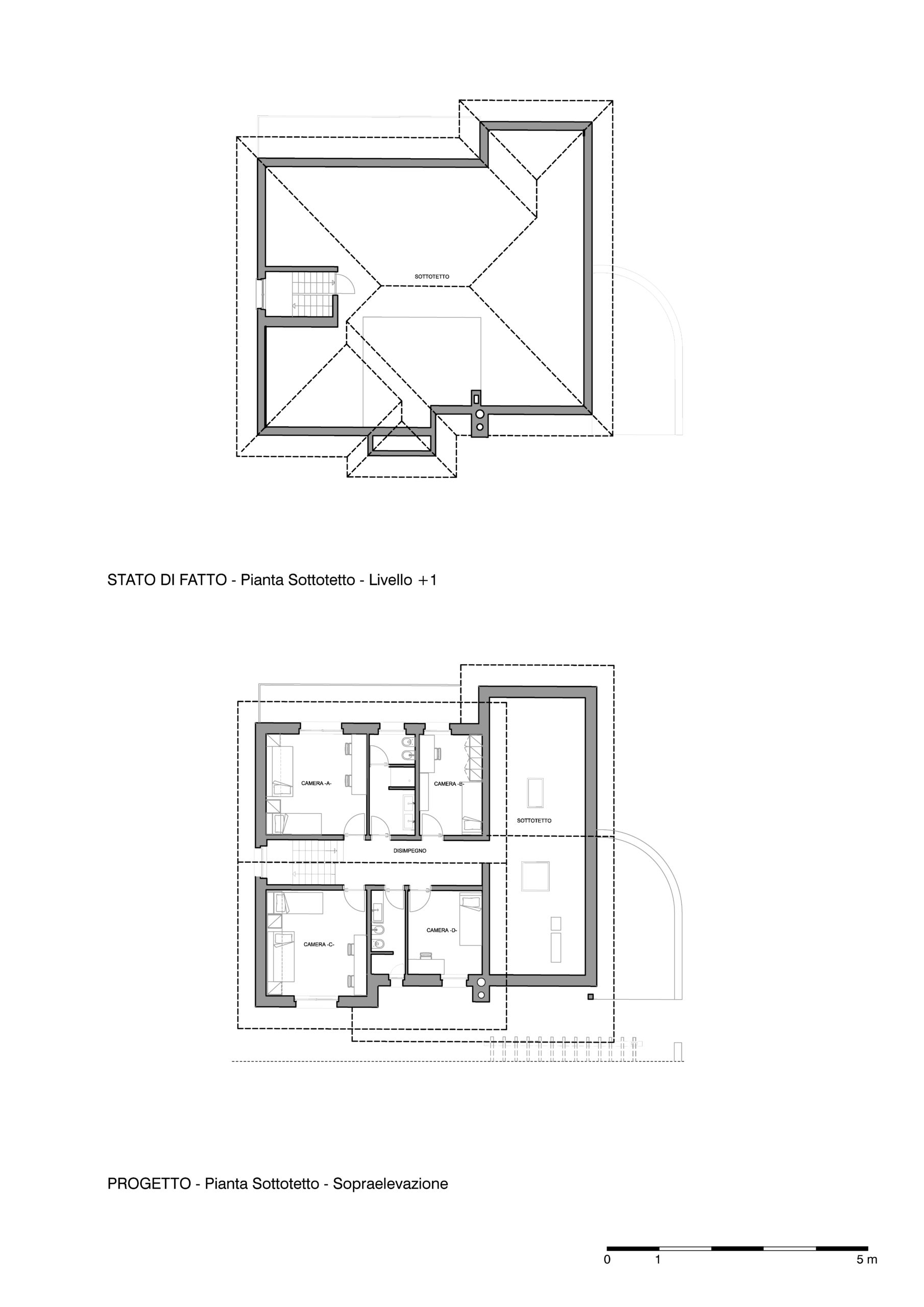
Il nuovo livello ospita quattro camere da letto, due bagni e un sottotetto non abitabile destinato a deposito/soffitta.
La copertura, originariamente caratterizzata da numerose falde dovute ad ampliamenti e modifiche eseguiti in momenti differenti, è stata semplificata attraverso la realizzazione di due tetti a capanna, disposti su livelli leggermente sfalsati.
Poiché la nuova sopraelevazione deve rispettare i requisiti del RUEn (Regolamento sull’utilizzazione dell’energia), si è scelto di applicare un cappotto termico anche alla parte esistente dell’edificio, così da garantire continuità alle facciate.














